Beschrijving
Ruime gezinswoning in kindvriendelijke, groene wijk
Deze fijne eengezinswoning ligt aan een autovrije straat in een zeer kindvriendelijke en groene woonomgeving. De woning heeft een ruime woon/zitkamer met open keuken, 4 slaapkamers, een ruime badkamer, en een zonnige achtertuin op het zuiden met berging en achterom. De gehele woning heeft dubbelglas, behalve de badkamer. Grotendeels voorzien van kunststof kozijnen. Het dak en dan met name de dakkapel is recent geïnspecteerd door ASA en is niet (meer) lek.
LIGGING/OMGEVING Gelegen in een rustige woonwijk met veel groen en speelvoorzieningen, is dit de ideale plek voor gezinnen. Zwanenburg is een klein en gezellig dorp aan de rand van de gemeente Haarlemmermeer en vlakbij Amsterdam. In het dorp is een winkelstraat met diverse winkels. Daarnaast zijn er diverse basisscholen en vele parken, meerdere sportgelegenheden en Zwanenburg is in zijn geheel zeer groen en kindvriendelijk. Het NS-treinstation (Halfweg-Zwanenburg) ligt op loopafstand, net als het recreatiegebied Spaarnwoude. Daarnaast is Sugar City met de Amsterdam Style Outlets ook op loopafstand. Per trein is zowel Amsterdam CS als Haarlem CS goed bereikbaar binnen 10 minuten. Kortom: Zwanenburg is de ideale plek voor gezinnen! En zelfs Zandvoort aan zee is vlakbij.
BEREIKBAARHEID Zwanenburg is een dorp gelegen tussen Amsterdam en Haarlem. De openbaar vervoermogelijkheden zijn erg goed: Buslijn 161 (Zwanenburg-Halfweg-Hoofddorp), buslijn 80 (Zandvoort-Haarlem-Amsterdam Centrum) en vanaf treinstation Halfweg-Zwanenburg ben je 2 haltes verwijderd van Amsterdam-Centraal Station en de andere kant op naar Haarlem-Centraal Station.
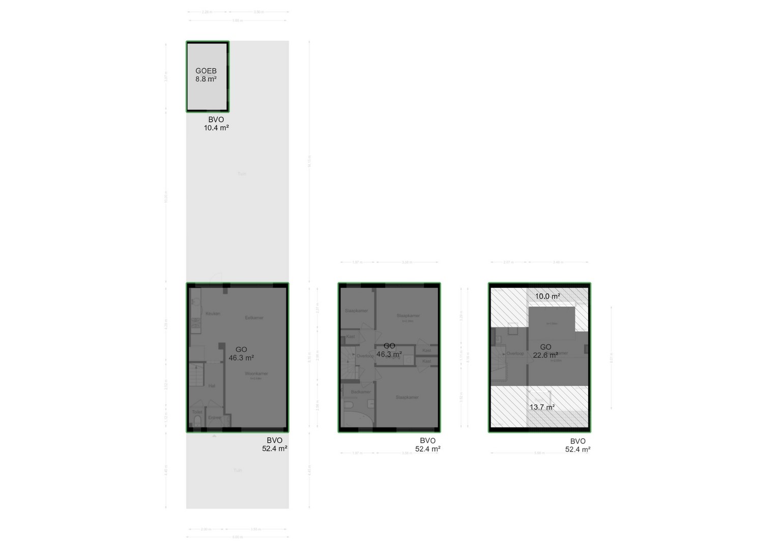
OPPERVLAKTE Woonoppervlakte: 157 m² Externe bergruimte: 9 m² Tuin: 80 m² Conform NEN-2580 KADASTRAAL BEKEND Gemeente: Haarlemmermeer Sectie: A Nummer: 8215 Groot: 167 m2 BESTEMMING Wonen EIGENDOM De woning is gelegen op eigen grond; geen erfpacht!
BIJZONDERHEDEN
-Het betreft een voormalige huurwoning;
-Ouderdoms-, asbest-, niet-bewoners clausule zijn van toepassing;
-Gelegen in een ruim opgezette wijk met veel groen;
-Eigen grond;
-Oplevering in overleg.
Indeling
INDELING
Begane grond: Entree met hal, meterkast, gang met toilet en fonteintje. Vanuit de gang komt u in de ruime woonkamer met teakhouten vloer en open keuken, welke voorzien is van een eenvoudig keukenblok, leeg en klaar om de keuken naar uw wens te plaatsen.
Via de keuken komt u uit in de achtertuin met stenen berging en achterom. De stenen berging is voorzien van een nieuw dak en is recent geschilderd.
Eerste verdieping
Eerste verdieping: Overloop met handige bergkast, ruime badkamer met bad, douche en toilet aan de voorzijde, één slaapkamer aan de voorzijde, en twee slaapkamers aan de achterzijde. De voormalige badkamer is momenteel in gebruik als wasruimte.
Tweede verdieping
Zolderverdieping: Voorzolder met veel bergruimte, nieuw Velux dakraam en cv-opstelling. De grote vierde slaapkamer is voorzien van een dakkapel aan de achterzijde.
Tuin
Grote zonnige tuin van 80 m2 met stenen schuur en achterom. Het dak van de berging is recent vernieuwd en het hout is recent geschilderd. Tevens is er een nieuwe schutting geplaatst.